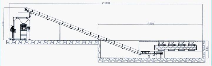
冲施肥生产线
当前位置:
首页
>> 冲施肥生产线
冲施肥生产线
共
1
条记录 页次:
1
/1 每页:
9
条记录
1